
Verify availabilityAdd to lists:✕

Recommended point: Easy to live ♪ with storage space Staff comment: Electric stove that does not catch fire, no key money required, air conditioning. It is a south-facing apartment.一押しポイント: 収納スペースつきで生活しやすい♪ スタッフコメント: 火が出ない電気コンロ、礼金不要、エアコン付き。南向きのアパートです。
| Building:建物面積 | Please inquire |
|---|---|
| Scale:建物規模 | 2 stories2階建 |
| Structure:構造 | Wooden木造 |
| Built in:建築年 | 1990 |

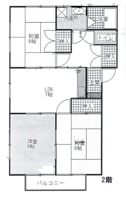
Storage is equipped with a shoe box, closet, etc., so it is useful for storing clothes and daily necessities ☆ We have adopted an independent washbasin that allows you to apply makeup and hair and makeup without being bothered by moisture even after bathing ☆ The rent is 55,000 yen per month ☆ The parking lot of this property is currently vacant and can be parked ☆ The Jonan community has been around for many years, We have supported room search mainly in Kuki City, so we are confident in finding a room (* ́ω'*)収納はシューズボックス・クロゼットなどが備え付けられているので、衣類や日用品の収納に重宝します☆入浴後でも湿気に悩まされずに化粧やヘアメイクができる独立洗面台を採用しています☆賃料が月5.5万円の物件です☆こちらの物件の駐車場は、現在空きがあり駐車可能です☆ 城南コミュニティは長年、久喜市を中心にお部屋探しをサポートして参りましたので、お部屋探しには自信があります(*´ω`*)
| Security deposit:敷金 | 1 month1ヶ月 |
|---|---|
| Key money:礼金 | 1 month1ヶ月 |
| Building:建物面積 | 24 m² |
| Scale:建物規模 | 1st/2nd floor1階/2階建 |
| Structure:構造 | Other軽量鉄骨 |
| Built in:建築年 | 2025 |

There is a delivery box in the common area, so you can pick up your package non-face-to-face. In-room facilities include CATV, no internet usage fee, air conditioning, etc., so you can spend a comfortable time. This property has an induction cooker. This is an apartment type room. The room with a beautiful view from the window every day is very attractive. The rent for this property is 40,000 yen.共用部には宅配ボックスが備え付けられているため、非対面での荷物の受け取りが可能です。室内設備はCATV・ネット使用料不要・エアコンなどが揃っているので、快適に過ごしやすいお部屋になります。IH調理器付きの物件です。アパートタイプのお部屋です。毎日綺麗な眺めが窓から見える部屋はとても魅力的です。こちらの物件は家賃4万円です。
| Building:建物面積 | 18 m² |
|---|---|
| Scale:建物規模 | 2nd floor/2nd floor building2階/2階建 |
| Structure:構造 | Wooden木造 |
| Built in:建築年 | 1989 |

室内設備はエアコン・フローリングなどが揃っており、とても充実しています。生活騒音の負担も軽めな角部屋がお薦めです。クローゼット付きの物件です。家賃10万円以下の物件をお探しのお客様におすすめです。駐輪場が付いている物件です。新しいお住まいをお探しの際は 城南コミュニティを是非ご利用ください。大田区にある不動産情報を、条件に合わせてご紹介いたします。室内設備はエアコン・フローリングなどが揃っており、とても充実しています。生活騒音の負担も軽めな角部屋がお薦めです。クローゼット付きの物件です。家賃10万円以下の物件をお探しのお客様におすすめです。駐輪場が付いている物件です。新しいお住まいをお探しの際は 城南コミュニティを是非ご利用ください。大田区にある不動産情報を、条件に合わせてご紹介いたします。
| Security deposit:敷金 | 1ヶ月1ヶ月 |
|---|---|
| Key money:礼金 | 1ヶ月1ヶ月 |
| Building:建物面積 | Please inquire |
| Scale:建物規模 | 2階/2階建2階/2階建 |
| Structure:構造 | 木造木造 |
| Built in:建築年 | 2004 |

Indoor facilities include air conditioning, baths, and toilets, and are very substantial. You can check visitors through the intercom, making it easier to avoid trouble in advance. For two people, a 3DK floor plan is highly recommended. This property is an apartment. Get a home where you can spend your time with peace of mind around Aobori on the Uchibo Line in Futtsu City.室内設備はエアコン・バストイレ別などが揃っており、とても充実しています。インターホン越しに来訪者を確認できるので、トラブルを事前に回避しやすくなります。2人暮らしには3DKの間取りが非常にオススメです。こちらの物件はアパートです。安心して過ごせる住まいを、富津市にある内房線青堀周辺でゲットしましょう。
| Security deposit:敷金 | 1 month1ヶ月 |
|---|---|
| Building:建物面積 | Please inquire |
| Scale:建物規模 | 2 stories2階建 |
| Structure:構造 | Other軽量鉄骨 |
| Built in:建築年 | 1993 |

There is no deposit key money, so the initial cost can be reduced. Credit card payment accepted. A property with a rent of 45,000 yen. With air conditioning.敷金礼金がかからないので初期にかかる費用が抑えれます。カード決済可。賃料4.5万円の物件。エアコン付。
| Security deposit:敷金 | Noneなし |
|---|---|
| Key money:礼金 | Noneなし |
| Building:建物面積 | Please inquire |
| Scale:建物規模 | 3 floors/3 floors3階/3階建 |
| Structure:構造 | Reinforced concrete鉄筋コンクリート |
| Built in:建築年 | 1986 |

A spacious 8-tatami property 4 minutes from Chika. Rent 52,000 yen (staff comment). 1R for single people, area 19.80㎡, south-facing, built in May 1991, wooden, 2nd floor.駅チカ4分の広々8帖物件。賃料5.2万円(スタッフコメント)。単身向け1R、面積19.80㎡、南向き、1991年5月築、木造、2階建ての2階。
| Building:建物面積 | Please inquire |
|---|---|
| Scale:建物規模 | 2 floors / 2 storeys2階/ 2階建 |
| Structure:構造 | Wooden木造 |
| Built in:建築年 | 1991 |

Storage is equipped with a closet and storage for all rooms, so it is useful for storing clothes and daily necessities. The indoor facilities are equipped with lighting and air conditioning. If you are in a hurry to move in, this vacant room can shorten the waiting time until you move in. This property has good sunlight. The room is equipped with a wide range of indoor facilities, including air conditioning and lighting, making it a comfortable room. The house is currently vacant, so it is possible to move as soon as possible.収納はクロゼット・全居室収納などが備え付けられているので、衣類や日用品の収納に重宝します。室内設備は照明付き・エアコンなど充実した設備を備え付けています。入居を急いでいる方、こちらの空室のお部屋であれば入居までの待ち時間も短縮できます。こちらの物件は陽当り良好です。室内設備はエアコン・照明付きなど豊富に揃っており、過ごしやすいお部屋になっております。現在空家となっておりますので、お早めのお引越しが可能な物件です。
| Security deposit:敷金 | 1 month1ヶ月 |
|---|---|
| Key money:礼金 | 1 month1ヶ月 |
| Building:建物面積 | Please inquire |
| Scale:建物規模 | 2 stories2階建 |
| Structure:構造 | Wooden木造 |
| Built in:建築年 | 1968 |

Ozeki Ichikawa store (supermarket) is located 497m from here. Indoor facilities include no internet usage fee, air conditioning, CATV, etc., so it will be a comfortable room. This is an apartment with a separate bath and toilet.暮らしに便利なオオゼキ 市川店(スーパー)がこちらから497mのところにあります。室内設備はネット使用料不要・エアコン・CATVなどが揃っているので、快適に過ごしやすいお部屋になります。バストイレ別のアパートです。
| Building:建物面積 | Please inquire |
|---|---|
| Scale:建物規模 | 2 stories2階建 |
| Structure:構造 | Wooden木造 |
| Built in:建築年 | 1968 |

Japan is an enticing destination for those looking to immigrate and start a new life. It is a country that seamlessly blends rich tradition with cutting-edge modernity. One of the key factors that make Japan so attractive to prospective immigrants is the housing availability. While Japan's bustling metropolises like Tokyo, Osaka, and Kyoto offer a wide range of housing options, from modern apartments to traditional machiya, the country also faces a unique issue: a surplus of vacant houses, especially in rural areas. This provides an intriguing opportunity for immigrants to potentially acquire properties at reasonable prices, often at a fraction of what one might pay in major cities.
Japan's real estate market is diverse and can cater to various budgets. While cities like Tokyo tend to be on the higher end of the spectrum, there are still affordable options to be found in the suburbs and smaller towns. This inclusivity in housing costs allows immigrants to select a location that suits their financial circumstances.
AllAkiyas.com puts at your disposition thousands of Japanese real estate listings of properties available for sale or rent. Our extensive listings include detached houses, townhouses, apartments, commercial spaces, and vacant lots. We place a special focus on traditional vacant houses, known as akiya (or kominka in rural areas), and traditional townhouses, or machiya. You can easily search for properties across all of Japan's prefectures using your specific criteria.