
Verify availabilityAdd to lists:✕

This is an old house built about 130 to 150 years ago that has a sense of history! The pillars are thick and the fittings and transoms are beautiful. There is also a convenient storage shed and barn. The spacious grounds of about 2,600 square meters are filled with trees and greenery, and you can enjoy strolling around!歴史を感じる築後約130~150年程の古民家住宅!柱も太く建具や欄間も素敵です。便利な物置と納屋もあります。庭木・緑がとても多く散策も楽しめそうな広大な約850坪の広い敷地!
| Land:土地面積 | 2811 m² |
|---|---|
| Building:建物面積 | 159 m² |
| Scale:建物規模 | 1 floor above ground地上1階平屋 |
| Structure:構造 | Wooden木造 |
| Built in:建築年 | 1895 |

Near Mifune High School. It is within walking distance of elementary and junior high schools, government offices, commercial facilities, etc.
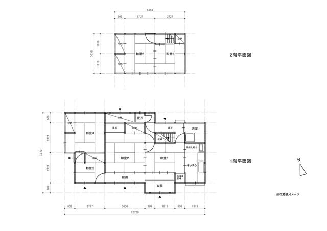
There are 2 buildings and a warehouse on site. House number 1215 has a history of renovation of roofs, floors, cloths, plumbing, etc. (Time unknown)
House No. 1200-2: Built in March 47 Wooden cement tile roofing Heike building 77.04㎡御船高校近く。小中学校、役場、商業施設等徒歩圏内です。
敷地内に2棟の建物と倉庫があります。家屋番号1215は屋根、床、クロス、水回り等リフォーム履歴あり。(時期不明)
家屋番号1200-2:昭和47年3月築 木造セメント瓦葺平家建 77.04㎡
| Land:土地面積 | 629 m² |
|---|---|
| Building:建物面積 | 114 m² |
| Scale:建物規模 | 1 floor above ground地上1階平屋 |
| Structure:構造 | Wooden木造 |
| Built in:建築年 | 1972 |

About 250m to Aeon Town Ise Lara Park! 149 tsubo of about 110m to National Route 23! It will be a warehouse alternative!イオンタウン伊勢ララパークまで約250m!国道23号線まで約110mの149坪!倉庫代わりの離れ付きとなります!
| Land:土地面積 | 493 m² |
|---|---|
| Building:建物面積 | 132 m² |
| Scale:建物規模 | 2 floors above ground地上2階 |
| Structure:構造 | Wooden木造 |
| Built in:建築年 | 1973 |

Japan is an enticing destination for those looking to immigrate and start a new life. It is a country that seamlessly blends rich tradition with cutting-edge modernity. One of the key factors that make Japan so attractive to prospective immigrants is the housing availability. While Japan's bustling metropolises like Tokyo, Osaka, and Kyoto offer a wide range of housing options, from modern apartments to traditional machiya, the country also faces a unique issue: a surplus of vacant houses, especially in rural areas. This provides an intriguing opportunity for immigrants to potentially acquire properties at reasonable prices, often at a fraction of what one might pay in major cities.
Japan's real estate market is diverse and can cater to various budgets. While cities like Tokyo tend to be on the higher end of the spectrum, there are still affordable options to be found in the suburbs and smaller towns. This inclusivity in housing costs allows immigrants to select a location that suits their financial circumstances.
AllAkiyas.com puts at your disposition thousands of Japanese real estate listings of properties available for sale or rent. Our extensive listings include detached houses, townhouses, apartments, commercial spaces, and vacant lots. We place a special focus on traditional vacant houses, known as akiya (or kominka in rural areas), and traditional townhouses, or machiya. You can easily search for properties across all of Japan's prefectures using your specific criteria.