
Verify availabilityAdd to lists:✕






























These properties are registered in my brother’s name following inheritance from our mother. In addition to multiple residential lots and buildings, the inheritance also includes farmland and forest (all contiguous), and I intend to transfer everything together. The house has been vacant for nearly 30 years. Some of the household items shown in the interior photographs were disposed of several years ago. The access road to the building is narrow and confined, so cars cannot reach the property. I am open to discussing contribution toward costs incurred at the time of transfer, such as registration fees and renovation expenses. With the above in mind, we are seeking a person willing to accept the properties. If you wish to apply to take over the properties, please enter your details in the application form below. Acquisition will not be on a first-come, first-served basis. Due to the large number of applications and inquiries, we will contact only shortlisted applicants after submission. (Please note that it may take some time before we respond.)
Apply here: Application form母からの相続にて兄の名義になっている物件です。
複数の宅地と建物の他に、畑と山林(全て繋がった土地です)も合わせて相続しており、全て譲渡したいと考えています。
建物は30年近く空き家です。
物件内部の写真に写っている家財道具の一部は、数年前に処分しています。
建物までの道が細く狭いため、車が入ることができません。
登記費用やリフォーム代など、譲渡の際にかかる費用については、ご相談に応じることも可能です。
以上をご承知おきの上、お譲り受けいただける方を募集いたします。
物件の譲受を希望される方は、以下のお申し込みフォームより内容をご入力ください。
取得は先着順ではありません。
またお申し込み・お問い合わせが多いため、お申し込み後のご連絡は"候補者の方のみ"とさせていただきます。(*ご連絡までお時間をいただく場合があります。)
お申し込みはこちら
お申し込みフォーム
Structure構造
Wood-framed, tile-roofed single-story house木造かわらぶき平家建




We are currently coordinating with a prospective acquirer, so new applications and inquiries are suspended.
This property was acquired through inheritance.
It has been vacant for five years.
It is close to Suwa Shrine, one of Nagasaki’s representative shrines, about a 9-minute walk away.
Near the shrine is the Nagasaki Museum of History and Culture, which gained attention for the “Pokémon Craft Exhibition.”
It is conveniently located about a 3-minute walk to a convenience store and bus stop, and about a 5-minute walk to the junior high school.
The property will be transferred in its current condition (sold as-is).
Please consult with us regarding any furniture.
We are seeking a transferee who will accept the above conditions.
We are currently coordinating with a prospective acquirer, so new applications and inquiries are suspended.取得希望者と調整中のため、新規のお申込み・お問い合わせを停止しています。
相続により取得した物件です。
5年間空き家の状態になっています。
長崎を代表する神社・諏訪神社にほど近く、徒歩で9分の距離です。
神社のそばには「ポケモン工芸展」で話題になった長崎歴史文化博物館があります。
コンビニ、バス停まで3分、中学校まで5分、という立地にあります。
現状引き渡しを希望します。
家具類についてはご相談させてください。
以上をご承知おきの上、お譲り受けいただける方を募集いたします。
取得希望者と調整中のため、新規のお申込み・お問い合わせを停止しています。
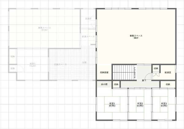
Scale / Layout構造・間取り
Structure構造
Two-story wooden building with cement-tile roof.木造セメント瓦葺2階建










It is a property that I have lived in for generations.
The house has been vacant for the past 20 years.
It is an old house that is about 100 years old.
It is about a 30-second walk from the calm Seto Inland Sea, and there is a fishing port and oyster hut nearby.
It is also close to Kamijima Sotoura Port, and there is a route to the Kasaoka Islands, such as Kitakijima, which became famous as the birthplace of Daigo Chidori.
It is about 17 minutes by car from Kasaoka Station on the JR Sanyo Main Line and about 8 minutes to the Kasaoka Bypass on National Route 2.
The building is about 195 square meters in size, and it was originally divided into two houses inside.
The floor plan is roughly 3DK each.
There is damage to the roof and leaks.
There are remnants inside.
The garden is regularly mowed several times a year.
There is no parking on site.
The front road is about 2m wide, and if you are a light car, you can access it to the nearest site.
There are no specific conditions for the transfer.
We can also bear the registration costs.
With the above in mind, we are looking for people who can take over the transfer.
If you wish to transfer the property, please enter the details using the代々住んできた物件です。
この20年ほどは空き家となっていました。
築約100年程度の古家です。
穏やかな瀬戸内海から徒歩30秒ほどの場所で、近くには漁港や牡蠣小屋があります。
神島外浦港にも近く、千鳥の大悟さんの出身地として有名になった北木島など笠岡諸島へ向かう航路が出ています。
JR山陽本線笠岡駅から車で約17分、国道2号線笠岡バイパスまで8分程度です。
建物は195㎡ほどの広さがあり、もともと一軒だったものを、内部で二軒に仕切られています。
間取りはそれぞれ概ね3DKずつです。
屋根などに傷みがあり、雨漏りがあります。
内部には残置物があります。
庭は年数回定期的に草刈を行っております。
敷地内に駐車場はありません。
前面道路は幅約2m程度で、軽自動車であれば敷地直近までアクセスできます。
譲渡にあたり、条件は特にございません。
登記費用は当方で負担することも可能です。
以上をご承知おきの上、お譲り受けいただける方を募集いたします。
物件の譲受を希望される方は、以下のお問い合わせフォームより内容をご入力ください。
出品者へのお問い合わせはこちら
お問い合わせフォーム
Structure構造
One-story wooden tile-roofed house木造瓦葺平家建



























Property acquired at auction in 2002 (Heisei 14). It was used as an elderly welfare/care facility and has been vacant since then. The first-floor area that had been used as a pharmacy has already been removed. There are multiple water leaks in the water supply piping serving the tenant and residential units. The site has a snow-melting system, but some of its piping is damaged. The first-floor tenant area is connected to the public sewer, but areas on the second floor and above are not connected. They are currently connected to a septic tank, but because the septic tank is malfunctioning, connection to the public sewer will be required. Other equipment defects could not be determined, so the property will be sold as-is. We are seeking buyers who accept the above conditions. Those wishing to acquire the property should complete the application form below. Acquisition is not on a first-come, first-served basis. Due to the large number of applications/inquiries, we will contact only shortlisted applicants after you apply. (Please note it may take some time before you are contacted.) Application: Application form競売にて平成14年に取得した物件です。
高齢者福祉施設として使用していました。
それ以降は空室の状況です。
薬局として使用していた1階部分も撤去済みです。
テナント・住戸部分に水道配管の水漏れが複数個所ございます。
また、敷地内に消雪設備がございますが、配管が破損している箇所がございます。
1階テナント部分は公共下水に接続していますが、2階以上の部分は未接続です。
現況は浄化槽に接続していますが、浄化槽不具合のため、公共下水への接続が必要となります。
その他設備不良につきましては、現状把握が出来ないため、現状有姿にてお譲りいたします。
以上をご承知おきの上、お譲り受けいただける方を募集いたします。
物件の譲受を希望される方は、以下のお申し込みフォームより内容をご入力ください。
取得は先着順ではありません。
またお申し込み・お問い合わせが多いため、お申し込み後のご連絡は"候補者の方のみ"とさせていただきます。(*ご連絡までお時間をいただく場合があります。)
お申し込みはこちら
お申し込みフォーム
Structure構造
6-story reinforced concrete (RC) building with a flat roof a鉄筋コンクリート造陸屋根・カラー鉄板葺6階建
















Applications and inquiries are currently suspended as we are coordinating with a prospective transferee. This is the family home where the grandparents lived for many years. There are currently no occupants and we do not intend to live here in the future, so we would like to transfer the building and land to someone who will make use of them. While valuing ties with the local community, we hope the property can be used freely as a residence, vacation home, renovation material, etc. Property condition:
- The property is currently vacant.
- The building shows deterioration consistent with its age.
- Repairs and renovation are assumed.
- Some household belongings remain; the property will be delivered as-is.
We recommend an on-site inspection for detailed condition information. For the free transfer, we are seeking someone who understands the following conditions:
- Costs for change of ownership and registration are borne by the transferee.
- Disposal of unwanted items, demolition, and repairs/renovation are to be undertaken by the transferee.
- Management, including measures for snowfall, snow removal, and freezing, is the responsibility of the transferee.
- The property will be han取得希望者と調整中のため、新規のお申込み・お問い合わせを停止しています。
祖父母が長年居住していた実家です。
現在は居住者がおらず、今後も住む予定がないため、建物と土地を活用してくださる方にお譲りしたいと考えております。
地域とのご縁を大切にしながら、住居・別荘・リノベーション素材など、自由な発想でご活用いただければ幸いです。
物件の現況
・現在は空き家の状態です。
・建物は築年数相応の劣化があります。
・修繕・リフォームが前提となります。
・家財道具が一部残っているため、現状渡しとなります。
※詳細な状態については、現地確認をおすすめします。
無償譲渡にあたり、以下の条件をご理解いただける方を対象としています。
・名義変更・登記費用は譲受人様のご負担
・不用品処分・解体・改修等は譲受人様にて実施
・積雪・除雪・凍結等への対応を含め、管理は譲受人様の責任
・現状有姿でのお引き渡し
・近隣住民への配慮を含め、誠実に管理・活用していただける方
※詳細条件については、個別にご相談のうえ決定いたします。
以上をご承知おきの上、お譲り受けいただける方を募集いたします。
取得希望者と調整中のため、新規のお申込み・お問い合わせを停止しています。
Structure構造
Two-story wooden building with a board roof木造板葺2階建




















This is a property I purchased myself in the past. The water supply pipe is damaged, and the toilet is a manual/cesspit-type (non-flush). The bathroom is in a collapsed condition. There is also roof leakage. It appears to be an old house that will need to be demolished. The property boundaries have not been determined. The terms of transfer are: sold in its current condition (as-is) and the seller is exempt from liability for contract non-conformity. We are looking for a buyer who accepts the above. If you wish to acquire the property, please fill in the application form below. Acquisition is not on a first-come, first-served basis. Also, due to the large number of applications and inquiries, we will only contact applicants who are selected as candidates. (Please note that it may take some time before we contact you.) Application link: Application form.過去に自分で購入した物件です。
水道管は破損しており、トイレは汲み取り式です。
浴室は崩壊状態になっています。
雨漏りもあります。
解体するしかない古家だと思われます。
なお境界は未確定です。
譲渡の条件は、現況有姿かつ契約不適合責任免責でお願いします。
以上をご承知おきの上、お譲り受けいただける方を募集いたします。
物件の譲受を希望される方は、以下のお申し込みフォームより内容をご入力ください。
取得は先着順ではありません。
またお申し込み・お問い合わせが多いため、お申し込み後のご連絡は"候補者の方のみ"とさせていただきます。(*ご連絡までお時間をいただく場合があります。)
お申し込みはこちら
お申し込みフォーム
Structure構造
Two-story wooden building with tiled roof木造瓦葺2階建








This is a building expected to be acquired by inheritance. In addition to the main house, the detached annex, a storage shed, an earthen storehouse (dozō), and a toilet building will also be transferred. The total floor area is 263.45 m². The property has been vacant for a long time and will likely require repairs before it is suitable for residence. The structure is not of traditional post-and-beam construction (zairai kōhō), but the building’s frame appears to be relatively sound. The site consists of residential land of 700.82 m² and forested land of 456 m². There are other parcels of land in the vicinity, so you may wish to consider acquiring them together. Utilities are believed to be public water and sewer and propane gas, but please confirm details on site. Interior photos of the building are available; please contact us if you would like to view them. We are seeking a buyer who accepts the above conditions. If you wish to acquire the property, please fill in the inquiry form below. Contact the seller here: Inquiry form.相続により取得を予定している建物です。
母屋のほか、離れ・物置・土蔵・便所の建物も合わせてお譲りします。
延床面積は263.45㎡です。
長らく空き家となっており、居住には修繕が必要そうです。
構造は在来工法ではなく、建物の躯体は比較的しっかりしていると思われます。
敷地は宅地が700.82㎡、山林が456㎡です。
周辺には他にも土地がありますので、あわせての譲り受けもご検討いただければと思います。
設備は公共上下水道、プロパンガスだと思いますが、詳細は現地確認にてお願いします。
また、建物内部の写真もございます。
確認したい方はお問合せください。
以上をご承知おきの上、お譲り受けいただける方を募集いたします。
物件の譲受を希望される方は、以下のお問い合わせフォームより内容をご入力ください。
出品者へのお問い合わせはこちら
お問い合わせフォーム
Structure構造
Wooden, thatch‑roofed single‑storey building木造草葺平家建












A Japanese-style two-story house with wooden tiles where you can enjoy a slow life in a place surrounded by nature. There are two sunrooms on a large site (659.06 square meters), which are installed next to the living room and in the garden. 7DK + 2 solariums.自然にかこまれた場所でスローライフを楽しめる和風の木造瓦葺2階建住宅。広い敷地(659.06㎡)にサンルームが2棟あり、リビング横と庭に設置。7DK+サンルーム2棟。
Scale / Layout構造・間取り
Structure構造
Other木造瓦葺

■Vacant house with farmland ■Quiet environment with lots of greenery■農地付き空き家 ■緑の多い静かな環境
Scale / Layout構造・間取り
Structure構造
One-story wooden building木造平屋建て








































































Originally, it was an atelier and workshop (built in Showa 46 / expanded twice / unused for about 20 years) and the original residence of its founder (built in Showa 59 / unused for about 1 year). It can be said that it is a historic building that has supported the prosperity of the textile industry in Yosano Town. The housing department has been reinforced for earthquake resistance in Heisei 19, and there is also a magnificent garden with dry landscape water, and I think it is a property that can be converted to business use (application for change of use, etc. is required) to accommodation facilities.元々は、織物の柄となる「紋」のデザインやデータ制作を行っていたアトリエ兼工房(昭和46年築 / 増築2回 / 約20年間未使用)と、その創業者の元自邸(昭和59年築 / 約1年間未使用)です。与謝野町の織物産業の隆盛を支えてきた、歴史的な建物といえます。住宅部は、平成19年に耐震補強済みで、枯山水の立派な庭園もあり、宿泊施設などへの事業用への転用(用途変更申請等が必要になります)も十分に可能な物件ではないかと思います。
Scale / Layout構造・間取り
Structure構造
Two-story wooden tile roof, 2-story building with steel fra木造瓦葺2階建、鉄骨・木造瓦・亜鉛メッキ鋼板葺2階建

Japan is an enticing destination for those looking to immigrate and start a new life. It is a country that seamlessly blends rich tradition with cutting-edge modernity. One of the key factors that make Japan so attractive to prospective immigrants is the housing availability. While Japan's bustling metropolises like Tokyo, Osaka, and Kyoto offer a wide range of housing options, from modern apartments to traditional machiya, the country also faces a unique issue: a surplus of vacant houses, especially in rural areas. This provides an intriguing opportunity for immigrants to potentially acquire properties at reasonable prices, often at a fraction of what one might pay in major cities.
Japan's real estate market is diverse and can cater to various budgets. While cities like Tokyo tend to be on the higher end of the spectrum, there are still affordable options to be found in the suburbs and smaller towns. This inclusivity in housing costs allows immigrants to select a location that suits their financial circumstances.
AllAkiyas.com puts at your disposition thousands of Japanese real estate listings of properties available for sale or rent. Our extensive listings include detached houses, townhouses, apartments, commercial spaces, and vacant lots. We place a special focus on traditional vacant houses, known as akiya (or kominka in rural areas), and traditional townhouses, or machiya. You can easily search for properties across all of Japan's prefectures using your specific criteria.
SPECIALTIES
© 2026 All Akiyas | Cheap houses in Japan : All rights reserved.
