All Akiyas
Register
Register


Previous picture
Next picture
View in full screen
Add to or remove from my list
commercial 原町区萱浜字六貫27-1
commercial 原町区萱浜字六貫27-1
commercial 原町区萱浜字六貫27-1
USD $438,594
(¥70,000,000)
7000 万円
Land area
Land土地面積
1941 m²
Building area
Building建物面積
656 m²
Built
Built建築年
2011
  • Info
  • Map
Description

Real Estate: Used Store Price: 70 million yen Location: 27-1 Rokkan, Kayahama, Haramachi-ku, Minamisoma City Land Category: Building Structure: Steel Frame Construction Year: 2011 and later Area: 1,941.22㎡ Building Area: 656.08㎡ Transaction Type: General不動産: 中古店舗  価格:7,000万円
所在地: 南相馬市原町区萱浜字六貫27-1
地 目:
建物構造:鉄骨造  築年数:2011年~
面 積: 1,941.22㎡  建物面積:656.08㎡
取引態様:一般

Address
27-1 Rokkan, Kayahama, Haramachi-ku, Minamisoma City, Fukushima Prefecture福島県南相馬市原町区萱浜字六貫27-1
Previous picture
Next picture
View in full screen
Add to or remove from my list
detached 原町区小川町
detached 原町区小川町
detached 原町区小川町
USD $62,656
(¥10,000,000)
1000 万円
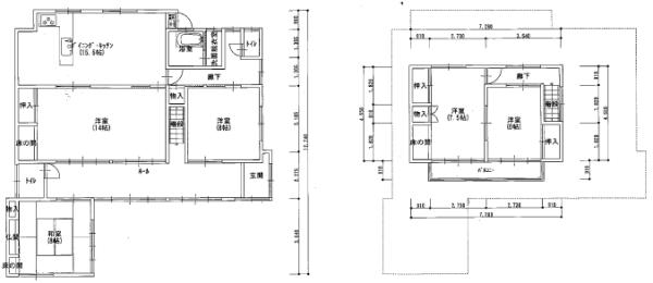
5LDK
  • 5 bedrooms
  • Integrated living, dining, and kitchen area
Land area
Land土地面積
221 m²
Building area
Building建物面積
152 m²
Built
Built建築年
1970
  • Info
  • Map
Description

Real Estate: Used Detached House Price: 10 million yen Location: 20-5 Ogawamachi, Haranomachi, Minamisoma City Land Category: Residential Building Structure: Wooden 2-story Floor Plan: 5LDK Age: Built in 1970 and later Area: 220.96㎡ Building Area: 152.15㎡ Transaction Type: General不動産: 中古戸建  価格:1,000万円
所在地: 南相馬市原町区小川町20-5
地目: 宅地
建物構造:木造2階建て  間取り:5LDK  築年数:1970年~
面積: 220.96㎡  建物面積:152.15㎡
取引態様:一般

Address
20-5 Ogawamachi, Haranomachi, Minamisoma City南相馬市原町区小川町20-5
Previous picture
Next picture
View in full screen
Add to or remove from my list
commercial 原町区錦町1丁目19
commercial 原町区錦町1丁目19
commercial 原町区錦町1丁目19
USD $491,225
(¥78,400,000)
7840 万円
Land area
Land土地面積
421 m²
Building area
Building建物面積
796 m²
Built
Built建築年
1995
  • Info
  • Map
Description

Real Estate: Used Office / Multi-family Residential Price: 78.4 million yen Location: 1-19 Nishikicho, Haramachi-ku, Minamisoma City Land Category: Miscellaneous Land Building Structure: Steel Frame, 3 Stories Age: Built in 1995 Area: 421㎡ Building Area: 795.52㎡ Transaction Type: General Mediation不動産: 中古事務所・共同住宅  価格:7,840万円
所在地: 南相馬市原町区錦町1丁目19
地 目: 雑種地
建物構造:鉄鋼造3階建  築年数:1995~
面 積: 421㎡  建物面積: 795.52㎡
取引形態:一般媒介

Address
1-19 Nishikicho, Haramachi-ku, Minamisoma City南相馬市原町区錦町1丁目19
Previous picture
Next picture
View in full screen
Add to or remove from my list
 北原字巣掛場
 北原字巣掛場
 北原字巣掛場
USD $240,788
(¥38,430,000)
3843 万円
Land area
Land土地面積
3630 m²
  • Info
  • Map
Description

Real Estate: Land for Sale 38,430,000 yen
Land Category: Miscellaneous land, wilderness, public road
Area: 3,630㎡
Transaction Type: General Brokerage
不動産: 売地 3,843万円
地 目: 雑種地、原野、公衆用道路
面 積: 3,630㎡
取引形態:一般媒介

Address
80-5, 83, 84, 85, 86 Kita Hara, Haranomachi, Minamisoma City南相馬市原町区北原字巣掛場80-5,83,84,85,86番地
View in full screen
Add to or remove from my list
 原町区大甕字林崎
USD $43,859
(¥7,000,000)
700 万円
Land area
Land土地面積
977 m²
  • Info
  • Map
Description

Real Estate: Land for Sale Price: 7 million yen Location: 32-1, 32-2, 195-1, 196-2, 196-3, Hayashizaki, Omika, Haramachi-ku, Minamisoma City Area: 977㎡ (296 tsubo) Transaction Type: Seller不動産: 売地 価格:700万円
所在地: 南相馬市原町区大甕字林崎32-1,32-2,195-1,196-2,196-3
面積: 977㎡(296坪)
取引形態:売主

Address
32-1, 32-2, 195-1, 196-2, 196-3, Hayashizaki, Omika, Haramachi-ku, Minamisoma City南相馬市原町区大甕字林崎32-1,32-2,195-1,196-2,196-3
detached 大字中山
Previous picture
Next picture
View in full screen
Add to or remove from my list
detached 大字中山
detached 大字中山
detached 大字中山
detached 大字中山
detached 大字中山
detached 大字中山
detached 大字中山
detached 大字中山
detached 大字中山
detached 大字中山
detached 大字中山
USD $14,411
(¥2,300,000)
230 万円
Land area
Land土地面積
659 m²
Building area
Building建物面積
133 m²
Built
Built建築年
1975
  • Info
  • Map
Description

A Japanese-style two-story house with wooden tiles where you can enjoy a slow life in a place surrounded by nature. There are two sunrooms on a large site (659.06 square meters), which are installed next to the living room and in the garden. 7DK + 2 solariums.自然にかこまれた場所でスローライフを楽しめる和風の木造瓦葺2階建住宅。広い敷地(659.06㎡)にサンルームが2棟あり、リビング横と庭に設置。7DK+サンルーム2棟。

Address
Yamaguchi Prefecture Hofu City Oji Nakayama 245-3山口県防府市大字中山245番3
detached 与謝郡与謝野町幾地
Previous picture
Next picture
View in full screen
Add to or remove from my list
detached 与謝郡与謝野町幾地
detached 与謝郡与謝野町幾地
detached 与謝郡与謝野町幾地
detached 与謝郡与謝野町幾地
detached 与謝郡与謝野町幾地
detached 与謝郡与謝野町幾地
detached 与謝郡与謝野町幾地
detached 与謝郡与謝野町幾地
detached 与謝郡与謝野町幾地
detached 与謝郡与謝野町幾地
detached 与謝郡与謝野町幾地
detached 与謝郡与謝野町幾地
detached 与謝郡与謝野町幾地
detached 与謝郡与謝野町幾地
detached 与謝郡与謝野町幾地
detached 与謝郡与謝野町幾地
detached 与謝郡与謝野町幾地
detached 与謝郡与謝野町幾地
detached 与謝郡与謝野町幾地
detached 与謝郡与謝野町幾地
detached 与謝郡与謝野町幾地
detached 与謝郡与謝野町幾地
detached 与謝郡与謝野町幾地
detached 与謝郡与謝野町幾地
detached 与謝郡与謝野町幾地
detached 与謝郡与謝野町幾地
detached 与謝郡与謝野町幾地
detached 与謝郡与謝野町幾地
detached 与謝郡与謝野町幾地
detached 与謝郡与謝野町幾地
detached 与謝郡与謝野町幾地
detached 与謝郡与謝野町幾地
detached 与謝郡与謝野町幾地
detached 与謝郡与謝野町幾地
detached 与謝郡与謝野町幾地
detached 与謝郡与謝野町幾地
detached 与謝郡与謝野町幾地
detached 与謝郡与謝野町幾地
detached 与謝郡与謝野町幾地
detached 与謝郡与謝野町幾地
detached 与謝郡与謝野町幾地
detached 与謝郡与謝野町幾地
detached 与謝郡与謝野町幾地
detached 与謝郡与謝野町幾地
detached 与謝郡与謝野町幾地
detached 与謝郡与謝野町幾地
detached 与謝郡与謝野町幾地
detached 与謝郡与謝野町幾地
detached 与謝郡与謝野町幾地
detached 与謝郡与謝野町幾地
detached 与謝郡与謝野町幾地
detached 与謝郡与謝野町幾地
detached 与謝郡与謝野町幾地
detached 与謝郡与謝野町幾地
detached 与謝郡与謝野町幾地
detached 与謝郡与謝野町幾地
detached 与謝郡与謝野町幾地
detached 与謝郡与謝野町幾地
detached 与謝郡与謝野町幾地
detached 与謝郡与謝野町幾地
detached 与謝郡与謝野町幾地
detached 与謝郡与謝野町幾地
detached 与謝郡与謝野町幾地
detached 与謝郡与謝野町幾地
detached 与謝郡与謝野町幾地
detached 与謝郡与謝野町幾地
detached 与謝郡与謝野町幾地
detached 与謝郡与謝野町幾地
detached 与謝郡与謝野町幾地
detached 与謝郡与謝野町幾地
detached 与謝郡与謝野町幾地
USD $156,641
(¥25,000,000)
2500 万円
Land area
Land土地面積
1274 m²
Building area
Building建物面積
356 m²
Built
Built建築年
1984
  • Info
  • Map
Description

Originally, it was an atelier and workshop (built in Showa 46 / expanded twice / unused for about 20 years) and the original residence of its founder (built in Showa 59 / unused for about 1 year). It can be said that it is a historic building that has supported the prosperity of the textile industry in Yosano Town. The housing department has been reinforced for earthquake resistance in Heisei 19, and there is also a magnificent garden with dry landscape water, and I think it is a property that can be converted to business use (application for change of use, etc. is required) to accommodation facilities.元々は、織物の柄となる「紋」のデザインやデータ制作を行っていたアトリエ兼工房(昭和46年築 / 増築2回 / 約20年間未使用)と、その創業者の元自邸(昭和59年築 / 約1年間未使用)です。与謝野町の織物産業の隆盛を支えてきた、歴史的な建物といえます。住宅部は、平成19年に耐震補強済みで、枯山水の立派な庭園もあり、宿泊施設などへの事業用への転用(用途変更申請等が必要になります)も十分に可能な物件ではないかと思います。

detached 鹿野町鹿野
Previous picture
Next picture
View in full screen
Add to or remove from my list
detached 鹿野町鹿野
detached 鹿野町鹿野
detached 鹿野町鹿野
detached 鹿野町鹿野
detached 鹿野町鹿野
detached 鹿野町鹿野
USD $16,917
(¥2,700,000)
270 万円
12SDK
  • 12 bedrooms
  • 1 service room (storage/den)
  • Dining and kitchen area
Land area
Land土地面積
800 m²
Building area
Building建物面積
242 m²
Built
Built建築年
1955
  • Info
  • Map
Description

Public water supply, public main sewage, parking lot, and separate building available (building area 108.3㎡, floor plan 4SLDK, date of construction: April 1990 (34 years built))公営水道、公共本下水、駐車場、       別棟あり(建物面積108.3㎡・間取4SLDK・築年月1990年4月(築34年))

Address
Shikano Town, Tottori City鳥取市鹿野町鹿野
(Approximate location)
detached 名田庄井上6-7-2
Previous picture
Next picture
View in full screen
Add to or remove from my list
detached 名田庄井上6-7-2
detached 名田庄井上6-7-2
detached 名田庄井上6-7-2
detached 名田庄井上6-7-2
USD $37,594
(¥6,000,000)
600 万円
Land area
Land土地面積
2116 m²
Building area
Building建物面積
182 m²
Built
Built建築年
1976
  • Info
  • Map

Scale / Layout構造・間取り

  • 2 stories
  • 2階建
Address
Fukui Prefecture Oi District Oi Town Nadasho Inoue 6-7-2福井県大飯郡おおい町名田庄井上6-7-2
detached 上竹
Previous picture
Next picture
View in full screen
Add to or remove from my list
detached 上竹
detached 上竹
detached 上竹
detached 上竹
detached 上竹
detached 上竹
detached 上竹
detached 上竹
detached 上竹
detached 上竹
detached 上竹
detached 上竹
detached 上竹
detached 上竹
detached 上竹
detached 上竹
detached 上竹
detached 上竹
detached 上竹
detached 上竹
detached 上竹
detached 上竹
detached 上竹
detached 上竹
detached 上竹
detached 上竹
detached 上竹
detached 上竹
detached 上竹
detached 上竹
detached 上竹
detached 上竹
detached 上竹
detached 上竹
USD $37,594
(¥6,000,000)
600 万円
Land area
Land土地面積
678 m²
Building area
Building建物面積
135 m²
Built
Built建築年
1916
  • Info
  • Map
Description

A used house (main house) on a hill in Kibi Kogen. We will hand over large farmland such as rice fields, fields, mountains and forests, as well as outbuildings (tenement houses, garages, warehouses). It includes agricultural land and may require permission from the Farmland Act. The toilet is flush type. Status Change.吉備高原の高台にある中古住宅(母屋)。田・畑・山林等大きな農地および別棟(長屋・車庫・倉庫)を併せてお渡しします。農地を含むため、農地法の許可が必要な場合があります。トイレは汲み取り式。現況渡し。

Address
Kaga-gun Kibi Chuo-cho Kamitake 1615-2加賀郡吉備中央町上竹1615-2

All akiyas in one place

Find the perfect vacant home in Japan!

  • All of Japan's prefectures in one website
  • Detailed listings with contact information
  • Conveniently translated into your language
  • Search properties by your own criteria
  • Get our personalized alerts in your mailbox

Login  Register
Japan

Settling in Japan

Japan is an enticing destination for those looking to immigrate and start a new life. It is a country that seamlessly blends rich tradition with cutting-edge modernity. One of the key factors that make Japan so attractive to prospective immigrants is the housing availability. While Japan's bustling metropolises like Tokyo, Osaka, and Kyoto offer a wide range of housing options, from modern apartments to traditional machiya, the country also faces a unique issue: a surplus of vacant houses, especially in rural areas. This provides an intriguing opportunity for immigrants to potentially acquire properties at reasonable prices, often at a fraction of what one might pay in major cities.

Japan's real estate market is diverse and can cater to various budgets. While cities like Tokyo tend to be on the higher end of the spectrum, there are still affordable options to be found in the suburbs and smaller towns. This inclusivity in housing costs allows immigrants to select a location that suits their financial circumstances.


Find a property with AllAkiyas.com

AllAkiyas.com puts at your disposition thousands of Japanese real estate listings of properties available for sale or rent. Our extensive listings include detached houses, townhouses, apartments, commercial spaces, and vacant lots. We place a special focus on traditional vacant houses, known as akiya (or kominka in rural areas), and traditional townhouses, or machiya. You can easily search for properties across all of Japan's prefectures using your specific criteria.


Previous picture
Next picture
Close pictures