
Verify availabilityAdd to lists:✕

This 8DK property is located in Hirota-cho, a port town with the smell of the sea. It is a 24-minute drive from the city center. There is a fishing port near the house, so you can enjoy walking along the coast and fishing.海の匂いが漂う港町、広田町にある8DKの物件。市街地から車で24分で到着します。家の近くには、漁港があり海岸の散歩や釣りを楽しむことができます。
| Land:土地面積 | 955 m² |
|---|---|
| Building:建物面積 | 204 m² |
| Scale:建物規模 | 2 stories2階建て |
| Structure:構造 | Two-story wooden building with tiled roof木造瓦葺2階建て |
| Built in:建築年 | 2000 |

There is an apple orchard on the premises, so it is a lovely house with a faint apple scent. Rikuzentakata has long been known as the Shonan of Iwate, and is a warm region with sunny skies and almost no snow in the winter.りんご畑が敷地内にあり、りんごがほのかに香る素敵なお家です。また陸前高田は昔から岩手の湘南と呼ばれ、冬は晴天が続き雪がほとんど降らない温暖な地域です。
| Land:土地面積 | 1257 m² |
|---|---|
| Building:建物面積 | 150 m² |
| Scale:建物規模 | 2 stories2階建て |
| Structure:構造 | Two-story wooden structure with galvanized steel roof木造亜鉛メッキ鋼板葺2階建 |
| Built in:建築年 | 1965 |

This house made of wood and concrete blocks stands in a small alley off the "Symbol Road," the main evacuation route from the coastal area to higher ground. It features a neat, square shape and a sense of depth.海岸エリアから高台に逃げる主要な避難路となる『シンボルロード』を1本入った小さな路地に建つ、木・コンクリートブロック造の家。四角く整ったフォルムが特徴的で、奥行きがある物件です。
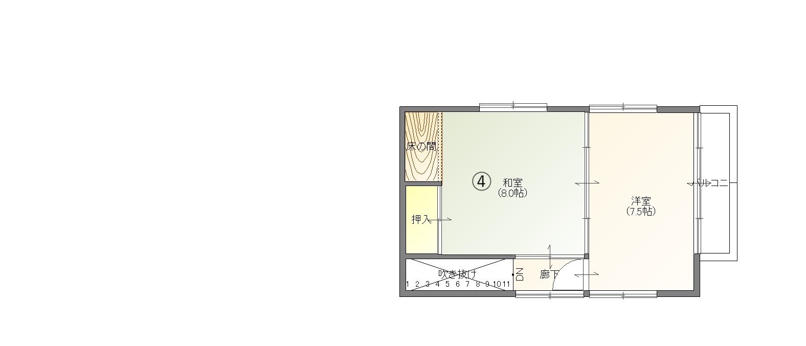
| Security deposit:敷金 | 2 months2ヶ月 |
|---|---|
| Land:土地面積 | 332 m² |
| Building:建物面積 | 144 m² |
| Scale:建物規模 | 2-storey, 8DK2階建て8DK |
| Structure:構造 | Wood and concrete block construction with tiled roof木・コンクリートブロック造瓦葺 |
| Built in:建築年 | 1964 |

This building is a combination store and residence, typical of the countryside. There was probably a road here in the past, and people probably lived there and ran small businesses.
The dirt floor area is spacious and has been turned into a store, so you can "do anything" here. You can make things, display things, and if you put in the effort to renovate it, you could even turn it into an old-style house cafe? Maybe?
There's also a large steel-framed warehouse in the back, so you could probably do all sorts of woodworking and metalworking!
Of course, it's also a great place to live normally and raise children, as it's quiet and in a nice natural environment, so it's recommended.
If you're thinking of escaping the city, how about this place?田舎によくある店舗+住宅になっている建物です。昔はたぶん街道があって、そこで暮らしながら小さい商売を営んでいたんでしょうね。
土間の部分が広くて、商店になっているので、ここで「何か」できます。物を作っても良いし、展示しても良いし、がんばってリノベーションすれば古民家カフェとかもできちゃう?かも?
裏に大きな鉄骨の倉庫もあるので、たぶん木工金工なんでもできちゃいますよ!
もちろん普通に暮らすのも、子育てするのも、静かで自然環境が良いのでおススメです。
都会からの脱出を考えているみなさま、こちらどうですか?
| Land:土地面積 | 370 m² |
|---|---|
| Building:建物面積 | 303 m² |
| Scale:建物規模 | 303.49m²303.49m² |
| Structure:構造 | Used detached house中古一戸建て |
| Built in:建築年 | 1963 |

In January 2018, I inherited my bag after I lived alone, but I don't plan to live there because I live in Tokyo. My brother is nearby, but he doesn't want to live there either, so I went to this site. It is about 130 years old, but the pillars and ceiling beams at that time were left as they were, and the interior and exterior were renovated 3 ~ 4 times, and I stayed for 10 days during the first bon, but I can live normally. I think it is quite an interesting property for those who are interested in old houses. My parents have inherited the house from generation to generation, and it is very painful to see it decay as it is. I would be happy if someone bought it for someone who likes old houses. The selling price is considered to be 5.9 million. We have been renovating repeatedly, but I think it will take some work from now on. In addition, there is a large garden and trees that need to be pruned, so if you do not take care of it yourself, it will cost money. When I asked someone who was familiar with the matter to take a look at it, I was told that the pillars and beams of that time probably no longer appeared, and that this alone would have a buyer. However, I can't comment on i2018年1月に一人暮らしだったお袋が亡くなり相続したのですが、僕自身東京在住なので住む予定がありません。弟が近くにいるのですが彼も住むつもりは無く、このサイトにアクセスしました。築130年位ですが当時の柱、天井の梁はそのまま残して内外3~4回のリフォームを行い初盆の間10日程滞在しましたが、普通に生活出来る状態です。古民家など興味のある方はかなり興味深い物件だと思います。親が代々受け継ぎ自分の育って来た家ですがこのまま朽ちていくのを見るのはとても辛い事です。どなたか古民家など好きな方に買って頂くと幸せです。売値は一応590万を考えております。リフォームを繰り返しておりますが、やはりこれから多少なりとも手はかかっていくと思います。又広い庭と剪定が必要な木々がありますのでご自分で手入れされない方はお金がかかると思います。こないだ詳しい方に見て頂いたら当時の柱、梁等は多分もう出てこず、これだけでも買い手がつくという事を言われました。ただ自分はそういう物に全く興味が無いのでコメントできませんが…
| Land:土地面積 | 800 m² |
|---|---|
| Building:建物面積 | 155 m² |
| Scale:建物規模 | It is a one-story building, but there is an attic (storeroo平屋ですが一部2.3坪の屋根裏(物置)有り |
| Structure:構造 | Wooden木造 |
| Built in:建築年 | 1893 |

Japan is an enticing destination for those looking to immigrate and start a new life. It is a country that seamlessly blends rich tradition with cutting-edge modernity. One of the key factors that make Japan so attractive to prospective immigrants is the housing availability. While Japan's bustling metropolises like Tokyo, Osaka, and Kyoto offer a wide range of housing options, from modern apartments to traditional machiya, the country also faces a unique issue: a surplus of vacant houses, especially in rural areas. This provides an intriguing opportunity for immigrants to potentially acquire properties at reasonable prices, often at a fraction of what one might pay in major cities.
Japan's real estate market is diverse and can cater to various budgets. While cities like Tokyo tend to be on the higher end of the spectrum, there are still affordable options to be found in the suburbs and smaller towns. This inclusivity in housing costs allows immigrants to select a location that suits their financial circumstances.
AllAkiyas.com puts at your disposition thousands of Japanese real estate listings of properties available for sale or rent. Our extensive listings include detached houses, townhouses, apartments, commercial spaces, and vacant lots. We place a special focus on traditional vacant houses, known as akiya (or kominka in rural areas), and traditional townhouses, or machiya. You can easily search for properties across all of Japan's prefectures using your specific criteria.