
Verify availabilityAdd to lists:✕

Convenient location with convenience stores and home centers in the surrounding area. Parking lot included for 1 car. The room was expanded and there was a distance from the neighboring door. Free rent for 1 month, no key money required, no guarantor. Initial cost card payment is accepted.周辺にコンビニ・ホームセンターのある便利な立地。駐車場1台込み。増築されたお部屋で隣戸との距離がある。フリーレント1ヶ月、礼金不要、保証人不要。初期費用カード決済可能。
| Security deposit:敷金 | 38,000 yen3.8万円 |
|---|---|
| Building:建物面積 | Please inquire |
| Scale:建物規模 | 2nd floor of 2 floors2階建ての2階 |
| Structure:構造 | Wooden木造 |
| Built in:建築年 | 1989 |

A spacious 9SLDK with a total floor area of about 328.75 square meters (about 100 tsubo). Wooden two-story building with office. The actual land area is measured to be 1,988.00㎡ (there is some hybrid land, and there is a plan to divide the pen). Spacious enough for business use.延床面積約328.75㎡(約100坪)の広々とした9SLDK。木造2階建て・事務所付き。土地面積実測1,988.00㎡(一部雑種地あり、分筆計画あり)。事業用にも適する広さ。
| Land:土地面積 | 1988 m² |
|---|---|
| Building:建物面積 | 329 m² |
| Scale:建物規模 | 2 stories2階建て |
| Structure:構造 | Wooden木造 |
| Built in:建築年 | 1999 |

An old house-style second-hand detached house in Motomachi, Otake City. How about living in the garden loving seasonal flowers and plants?大竹市元町に古民家風中古戸建。お庭で季節の草花を愛でる暮らしはいかがですか?
| Land:土地面積 | 374 m² |
|---|---|
| Building:建物面積 | 114 m² |
| Scale:建物規模 | 2 stories2階建て |
| Structure:構造 | Wooden木造 |
| Built in:建築年 | 1960 |

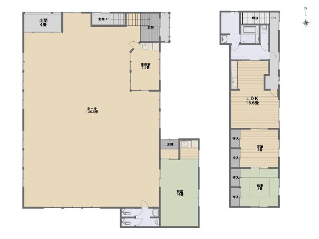
Property type: Detached house. Floor plan: 7DK. Building area: 196.99㎡ (wall core). Land area: 1,255.26㎡ (public register). Building structure: Wooden structure. Date of construction: April 1988. Management code: ACZ400004. Transaction mode: Mediation.物件種別: 戸建て。間取り: 7DK。建物面積: 196.99㎡(壁芯)。土地面積: 1,255.26㎡(公簿)。建築構造: 木造。築年月: 1988年4月。管理コード: ACZ400004。取引態様: 媒介。
| Land:土地面積 | 1255 m² |
|---|---|
| Building:建物面積 | 197 m² |
| Scale:建物規模 | 2 stories2階建て |
| Structure:構造 | Wooden木造 |
| Built in:建築年 | 1988 |

You can view it. Please make a reservation in advance as you are residing there. I entrusted the property to Hanataka 2-chome. It is carefully lived in and does not feel the age of the building. The supermarket is also nearby, making it a convenient area for living.内覧可能です。居住中のため、事前にご予約をお願いします。花高2丁目に物件をお預かりしました。丁寧に住まわれてあり築年数を感じません。スーパーも近く生活に便利なエリアです。
| Land:土地面積 | 214 m² |
|---|---|
| Building:建物面積 | 101 m² |
| Scale:建物規模 | 2 stories2階建て |
| Structure:構造 | Wooden木造 |
| Built in:建築年 | 1975 |

It is a quiet place rich in nature. Convenience stores and supermarkets are also nearby. Please also consult with us about your renovation plan.自然豊かで静かな場所です。コンビニ、スーパーも近くにあります。リフォームプランもご相談ください。
| Land:土地面積 | 604 m² |
|---|---|
| Building:建物面積 | 163 m² |
| Scale:建物規模 | 2 stories2階建て |
| Structure:構造 | Wooden木造 |
| Built in:建築年 | 1978 |

This is the property introduction page of City House Kitamoto Building No. 4 (4LDK/2nd ~ 3rd floor). In addition to questions about the property, please feel free to contact Pitat House if you have any questions about the property, such as information requests, surrounding environment, or contracts. (AN400067)シティハウス北本4号棟(4LDK/2階~3階)の物件紹介ページです。物件に関する質問の他、案内希望、周辺環境、契約についてなどご不明な点がありましたらお気軽にピタットハウスまでお問い合わせください。(AN400067)
| Building:建物面積 | 98 m² |
|---|---|
| Scale:建物規模 | 3 floors 2nd ~ 3rd floor3階建ての2階~3階 |
| Structure:構造 | Reinforced concrete construction鉄筋コンクリート造 |
| Built in:建築年 | 1983 |

A detached house for sale in Maruwa Select Home. A high-airtight and highly insulated house (polyurethane foam insulation) with a floor plan that takes into account housework conductors and storage. 2 parking spaces are available, and Kitamoto Station is accessible in 11 minutes on foot.丸和セレクトホーム分譲の戸建て。高気密高断熱住宅(発泡ウレタン断熱)で家事導線・収納に配慮した間取り。駐車2台可、徒歩11分で北本駅アクセス。
| Land:土地面積 | 110 m² |
|---|---|
| Building:建物面積 | 104 m² |
| Scale:建物規模 | 2 stories2階建て |
| Structure:構造 | Wooden木造 |
| Built in:建築年 | 2023 |

With balcony roof. All rooms are double-glazed + some are implus. Fabricated cupboards, all rooms are coated on the floor (with a 20-year warranty). The sun is good and the room is very clean.バルコニー屋根付。全室ペアガラス+一部インプラス。造作カップボード・全室フロアコーティング済(20年保証付)。陽当り良好・室内大変綺麗です。
| Land:土地面積 | 110 m² |
|---|---|
| Building:建物面積 | 87 m² |
| Scale:建物規模 | 2 stories2階建て |
| Structure:構造 | Wooden木造 |
| Built in:建築年 | 2017 |

A two-story newly detached house with two parking spaces. The building area is 83.22㎡ (wall core), and the land area is 88.86㎡ (public register). 15 minutes walk from Minami-Settsu Station. Current status: Not completed.駐車場2台付の2階建て新築戸建。建物面積83.22㎡(壁芯)、土地面積88.86㎡(公簿)。南摂津駅徒歩15分。現況:未完成。
| Land:土地面積 | 89 m² |
|---|---|
| Building:建物面積 | 83 m² |
| Scale:建物規模 | 2 stories2階建て |
| Structure:構造 | Wooden木造 |
| Built in:建築年 | 2025 |

Japan is an enticing destination for those looking to immigrate and start a new life. It is a country that seamlessly blends rich tradition with cutting-edge modernity. One of the key factors that make Japan so attractive to prospective immigrants is the housing availability. While Japan's bustling metropolises like Tokyo, Osaka, and Kyoto offer a wide range of housing options, from modern apartments to traditional machiya, the country also faces a unique issue: a surplus of vacant houses, especially in rural areas. This provides an intriguing opportunity for immigrants to potentially acquire properties at reasonable prices, often at a fraction of what one might pay in major cities.
Japan's real estate market is diverse and can cater to various budgets. While cities like Tokyo tend to be on the higher end of the spectrum, there are still affordable options to be found in the suburbs and smaller towns. This inclusivity in housing costs allows immigrants to select a location that suits their financial circumstances.
AllAkiyas.com puts at your disposition thousands of Japanese real estate listings of properties available for sale or rent. Our extensive listings include detached houses, townhouses, apartments, commercial spaces, and vacant lots. We place a special focus on traditional vacant houses, known as akiya (or kominka in rural areas), and traditional townhouses, or machiya. You can easily search for properties across all of Japan's prefectures using your specific criteria.